高岡町 平屋
価格
3540
万円
間取り
3LDK
面積
92.74㎡
所在階
-
片流れ屋根が周囲の目を引く、スタイリッシュな佇まいです。(※
ライフステージの変化への対応性と日常の快適性を追求した設計で
玄関周りの木目調がアクセントとなり、高級感と温かみを両立させ
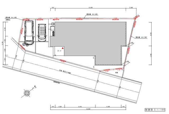
駐車場は2台停められます。(※完成イメージ)
道路側には目隠しフェンスを設置する予定です。(※完成イメージ
リビングの天井高は3.2m~最大5.1m。外観からは想像でき
キッチンには人気のLIXILシエラSを採用。タッチレス水栓、
家電収納もLIXILシエラSを配置し、パントリーには使いやす
ユニットバスはTOTOサザナHTシリーズ(1坪タイプ)を採用
配置図
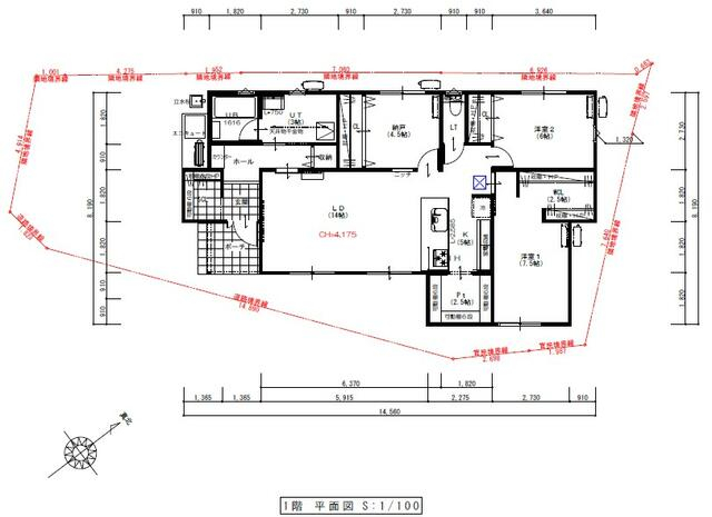
平面図
立面図