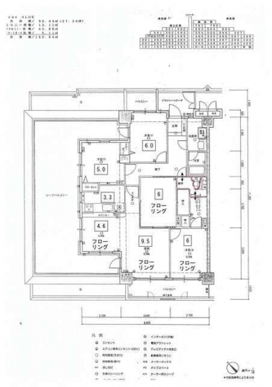
グランドール今治三番館
価格
1170
万円
間取り
4LDK
面積
90.44㎡
所在階
4階
間取り