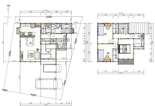
ディアタウン北井門五丁目№8
価格
3499
万円
間取り
4LDK
面積
96.5㎡
所在階
-