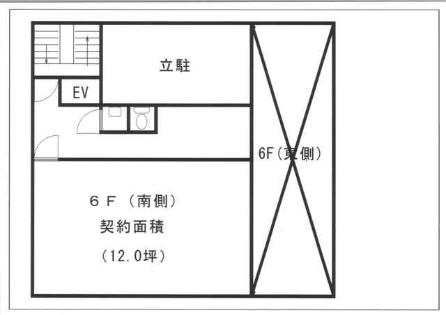
松山市一番町1丁目の店舗一部
価格
7.92
万円
面積
39.67㎡
所在階
6階
間取り