飾磨区清水戸建
価格
8
万円
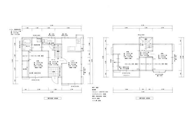
間取り
3LDK
面積
78.66㎡
所在階
-
1階洋室
2階洋室