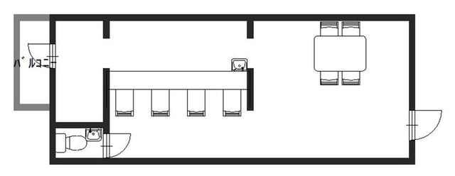
ヴィーナスプラザ
価格
6.16
万円
面積
23㎡
所在階
2階
間取り