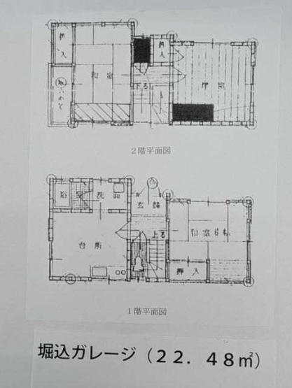
神戸市長田区長田天神町1丁目の中古一戸建て
価格
980
万円
間取り
3DK
面積
69.93㎡
所在階
-