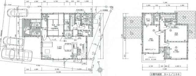
加古郡播磨町古宮1丁目の中古一戸建て
価格
2980
万円
間取り
4LDK
面積
106.8㎡
所在階
-
シュ-ズクロ-ク
玄関収納
キッチン側から
大容量の収納スペース