太陽生命神戸ビル
価格
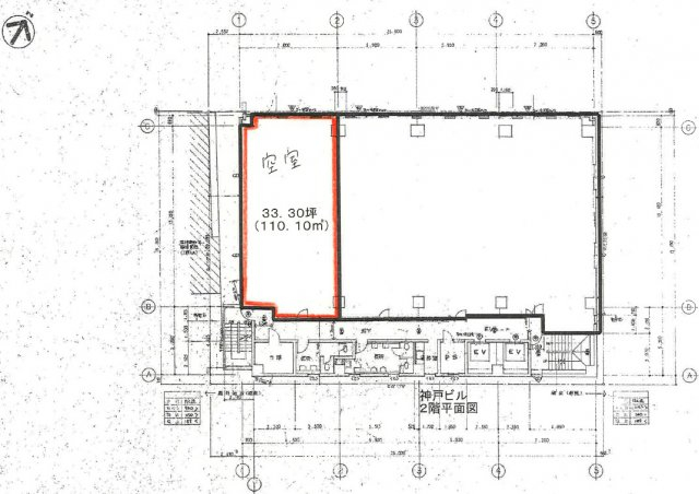
36.63
万円
面積
110.1㎡
所在階
2F階
間取り
外観
内装
内装
内装
展望
展望
その他共有部分
その他共有部分
トイレ
トイレ
その他共有部分