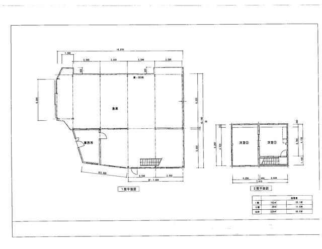
小野市片山町の倉庫
価格
33
万円
面積
224.83㎡
所在階
-
間取り