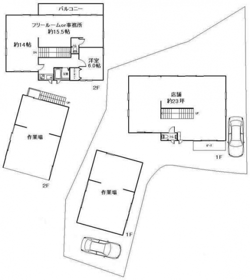
西宮市湯元町 店舗
価格
25
万円
面積
152.36㎡
所在階
-
間取り
1階
1階
2階
2階
ミニキッチン
1000000
作業場