南あわじ市潮美台1丁目の中古一戸建て
価格
1660
万円
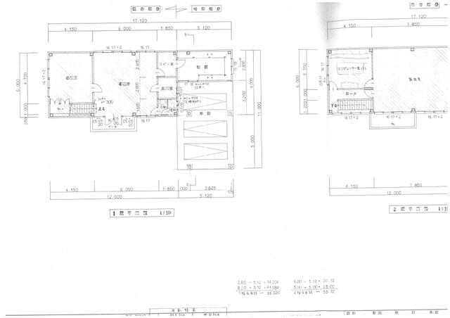
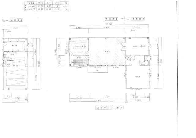
間取り
7K
面積
215.64㎡
所在階
-