神戸市北区有馬町の店舗事務所
価格
38.5
万円
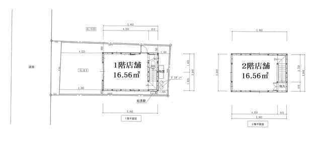
間取り
1LDK
面積
33.12㎡
所在階
1階
間取り