長田区五位ノ池町4丁目_新築戸建
価格
3280
万円
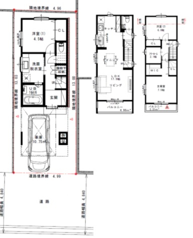
間取り
3SLDK
面積
107.37㎡
所在階
-
使いやすくおしゃれでニーズの高いシステムキッチン付きの物件です◎駅まで徒歩12分の場所にある物件です◎山が近くにありますので、疲れた時には自然の中まで足を運んで癒されることができます◎こちらの物件は3SLDKという広々とした間取りが魅力的です◎神戸市長田区にある不動産が気になる方は、ぜひ当社までお問い合わせください◎地域情報などと併せて、不動産の詳細情報をご紹介いたします(*^_^*)
間取り