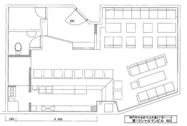
第13シャルマン
価格
30.8
万円
面積
55.86㎡
所在階
6階
間取り