姫路市東駅前町のマンション
価格
21
万円
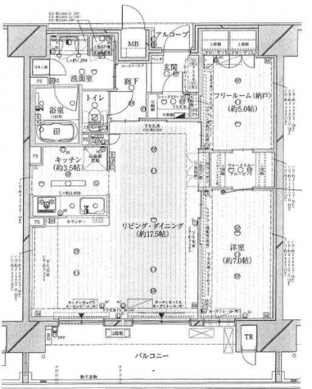
間取り
1SLDK
面積
77.15㎡
所在階
3階
間取り