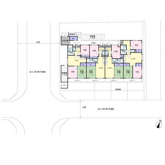
伊丹市荻野2丁目のマンション
価格
16950
万円
面積
699.8㎡
所在階
-
間取り
1階間取り図
2階間取り図
3階間取り図