甲陽園ガーデンハウス
価格
2980
万円
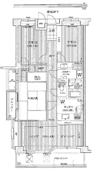
間取り
3LDK
面積
71.64㎡
所在階
3階
間取り