加古川市加古川町篠原町の事務所
価格
47.69
万円
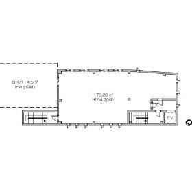
面積
179.2㎡
所在階
2階
間取り