東山賃貸事務所 平屋建
価格
39.05
万円
面積
196.07㎡
所在階
-
駐車場は近くに2ヵ所あり 合計40台まで可能です
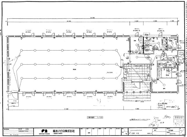
間取り
玄関エントランス 事務所 厨房 男子トイレ 女子トイレ 女子更衣室 社員食堂 倉庫室 必要な設備が揃っています
外観
道路から見た外観です
周辺
県道東面から進入路です
外観
西面の外観です 南道路から出入口があります
エントランス
重厚な玄関です
玄関
エントランスは別室です
洋室
事務所の床カーペットのサンプル帳より選んでください
トイレ
男子トイレ 洋式便器 小便器 洗面化粧台
キッチン
厨房室 ガスコンロ2口
洋室
社員食堂として利用できます
洗面所
女子トイレ 女子更衣室があります
洋室
女子更衣室
トイレ
女子トイレ
トイレ
男子トイレ 小便器
トイレ
男子トイレ
外部駐車場31台 徒歩0.5分