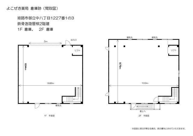
姫路市御立中8丁目の店舗事務
価格
7000
万円
面積
281.53㎡
所在階
-
間取り