の-
価格
0
万円
所在階
-
外観
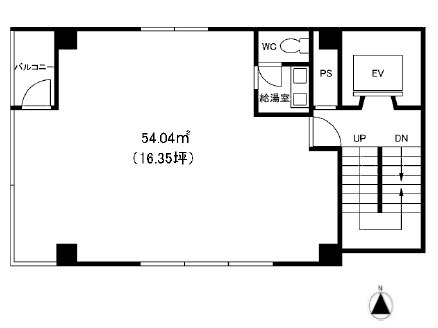
間取り
内装
2023年撮影
キッチン
トイレ
その他共有部分
その他共有部分