武庫ハイマB棟
価格
3.3
万円
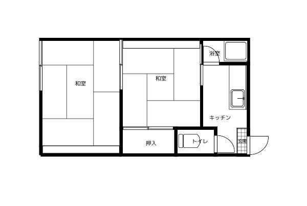
間取り
2K
面積
28㎡
所在階
2階
間取り
和室
和室