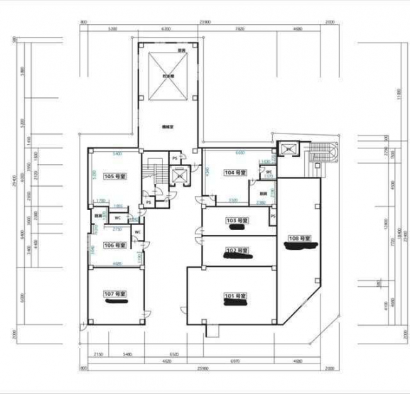
ANGELO福中
価格
11
万円
面積
24.87㎡
所在階
1階
間取り