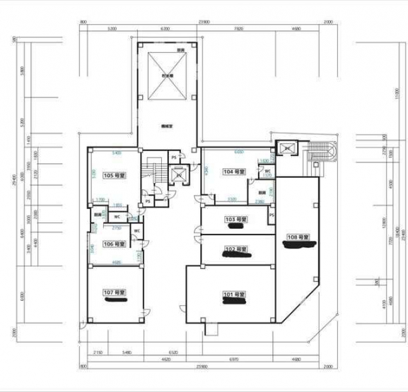
ANGELO福中
価格
9
万円
面積
25.68㎡
所在階
1階
間取り