高砂市荒井町千鳥・売戸建
価格
5000
万円
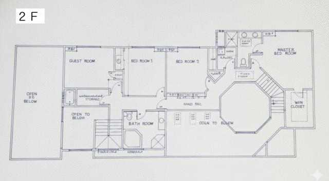
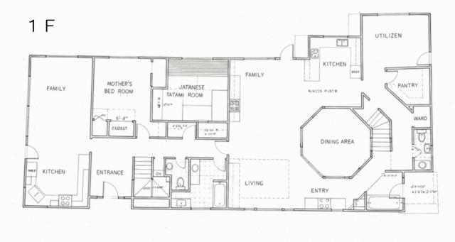
間取り
7LDK
面積
359㎡
所在階
-
1F
2F
全体
東側玄関
西側玄関
車庫