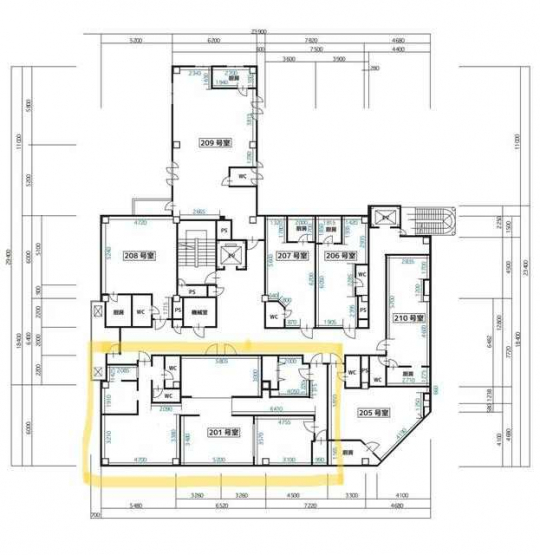
ANGELO福中
価格
14
万円
面積
109.95㎡
所在階
2階
間取り