建隆ビルⅡ
価格
49.621
万円
面積
156.69㎡
所在階
6階
外観
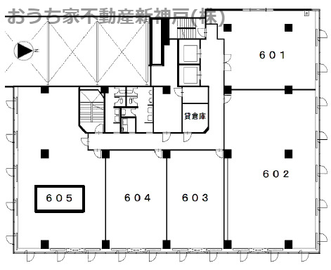
間取り
内装
別部屋参考写真
内装
別部屋参考写真
内装
別部屋参考写真
内装
別部屋参考写真
その他共有部分
その他共有部分
その他共有部分
トイレ
トイレ
トイレ
その他共有部分
その他共有部分
その他共有部分
その他共有部分
その他共有部分
その他共有部分
その他共有部分
その他共有部分
その他共有部分