西宮市 広田町 中古戸建
価格
12950
万円
間取り
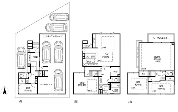
4SLDK
面積
266.2㎡
所在階
-
こだわりで選びたい方におすすめ!西宮市エリアで住まいをお探しなら「西宮市 広田町 中古戸建」!こちらは中古の戸建て物件です!よく家で料理をするという方に嬉しいシステムキッチン付きの物件!必要なものは決断だけ!1億2,950万円で至高の生活を手に入れましょう!西宮市の阪急神戸本線西宮北口近くで一戸建てをお探しなら、当社にご連絡ください!お客様からのお問い合わせをスタッフ一同お待ちしております(^_^)
※西宮市の不動産売却なら株式会社FineBlue
外観
間取り
外観
間取り
居間・リビング
その他
その他
洋室
その他
洋室
洋室
洋室
和室
玄関
玄関
その他
その他
キッチン
風呂
トイレ
独立洗面台
その他
収納
収納
その他
共用部分
洋室