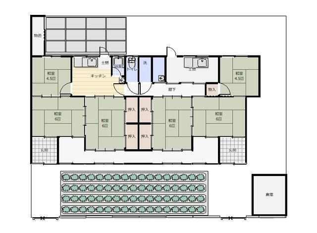
相生市古池1丁目の一戸建て
価格
3.9
万円
間取り
6SDK
面積
105.54㎡
所在階
-