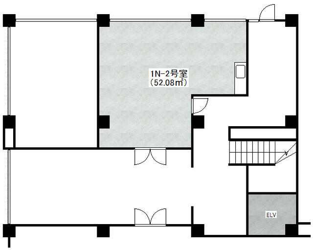
三田ビル
価格
15.59
万円
面積
52.08㎡
所在階
1階
間取り