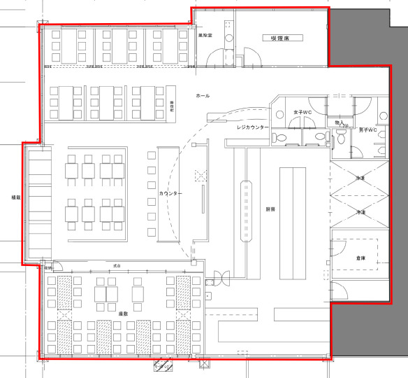
兵庫県たつの市ロードサイド店舗
価格
88
万円
面積
322.92㎡
所在階
-
外観
間取り