千種戸建
価格
200
万円
間取り
6DK
面積
89.25㎡
所在階
-
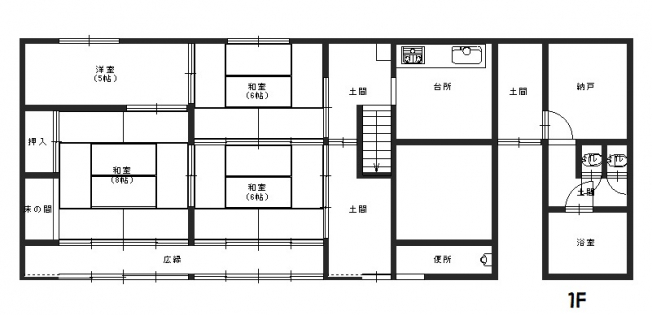
間取り
1Fの間取りです。
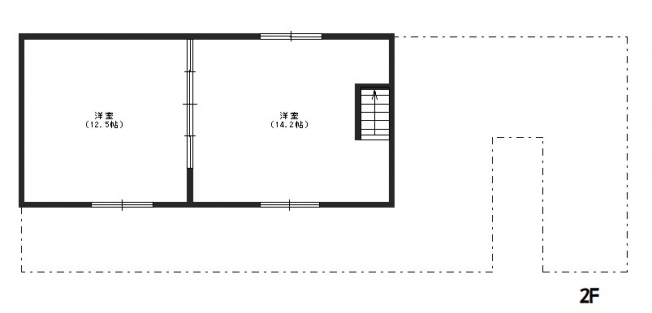
間取り
2Fの間取りです。
外観
外観もきれいです