神戸市灘区神ノ木通3丁目新築一戸建て
価格
5980
万円
間取り
4LDK
面積
112.12㎡
所在階
-
徒歩5分の場所に神戸市立灘小学校があります。新築の戸建て物件です。使いやすくおしゃれでニーズの高いシステムキッチン付きの物件です。床暖房は、他の暖房器具のようにこまめな掃除が不要なので、日々のお手入れが簡単です。神戸市灘区に密着した当社では、多種多様な不動産をご紹介することが可能です。お引っ越しをお考えでしたら、まずはご連絡ください。
外観
当日見学可能ですので、見学希望の際はお気軽にお問い合わせください。ネットからの見学予約も便利です♪
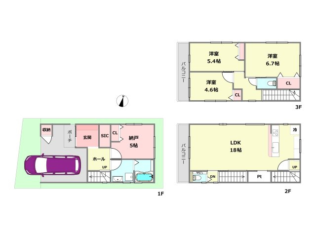
間取り
間取り
リビングダイニングは家族や友人とのコミュニケーションを楽しむ場所でくつろぎながら食事や会話を楽しめ、多目的に利用できリラックスできる空間です。家庭内の中心として機能し、快適な生活をサポートします。
居間・リビング
当日見学可能ですので、見学希望の際はお気軽にお問い合わせください。ネットからの見学予約も便利です♪
キッチン
シンプルなデザインと使いやすさを兼ね備えた対面式システムキッチンは、効率的な作業スペースを提供し、家族やゲストとのコミュニケーションを促進します。
風呂
ユニットバスは省スペースでありながら、シンプルな設計と使いやすさを備え、簡便なメンテナンスが可能です。またミラー・小物置き場もあり便利です。
独立洗面台
化粧品や洗顔料、歯ブラシなどの必需品をまとめて置ける収納スペースがあり、使用するたびに取り出す手間が省けます。また、水回りのため、濡れても大丈夫な素材が使用されており、お手入れが簡単です。
トイレ
温水洗浄便座付トイレは温水洗浄機能により、暖かい水でおしりを洗浄することができ、冷たい水を使う従来の便座に比べ、温水洗浄機能で暖かいトイレを提供し、快適な使用を可能にします。
大きなシンクでお鍋などの大きな調理器具を洗う際にも便利です。
訪問者が来たときにテレビ画面で確認できるため、安心してドアを開けられます。録画機能があるものもあり、留守中に来訪者を記録しておくことができます。利便性が高く、セキュリティ面でも安心です。
収納力が高く洋服や小物を整理しやすく、更衣室のように使え、部屋がすっきり保てます。収納の配置を自由に調整でき、換気性が良く防湿・防虫対策も可能。快適で機能的な生活空間を実現できます♪
ガス式床暖房は、効率的な暖房システムであり、床からの温かさが快適な環境を提供します。床全体が均一に暖まり足元からの暖かさが感じられます。また空気の循環が少ないため、ホコリやアレルゲンの拡散を抑えます。
洋室
明るい色合いのフローリングとクロスを使用した洋室は家具やインテリアとも調和しやすく空間が広く感じられ開放感を生み出します。自然光を効果的に反射し、室内を明るく保つため、日中の照明使用を抑えられます。
子供部屋
子供部屋…創造性や成長を促す遊びの空間を提供。学習や趣味に集中できる環境を整えます。個別のプライベートスペースは自己表現と自立心を育み、心地よい睡眠環境を整えリラックスできる場所を提供。
寝室
寝室…リラックスできるプライベート空間で、快適な睡眠をサポート。個人の好みに合わせたインテリアや寝具で心地良さを追求。プライベートな時間を過ごし、リフレッシュする場所におすすめです。
前面道路含む現地写真
前面道路含む現地写真
展望
物件からの展望
キッチン
多数の調理器具を同時に使用でき、料理の効率化が可能。省エネで節約になり、様々な料理スタイルに適応できます。また、火力調整が独立しており、手入れや掃除もしやすく、今よりもっとお料理が楽しくなるかも。
収納
衣類やアクセサリー、小物類の収納が便利で整理整頓がしやすく、部屋の美観を保ちつつ、スペースを最大限に活用できます。衣服のしわやダメージを防ぎ、長持ちさせることができます。
発電・温水設備
バルコニー
収納
収納
洗濯物の仕分け作業がしやすく、整理整頓が容易になります。洗濯音や湿気を他の部屋に持ち込まず、生活環境を快適に保ちます。上部を活用すれば収納スペースを確保でき洗剤や洗濯用品の整理もしやすくなります。
衣服の収納や脱ぎ着や整理整頓がしやすく、湿った衣類を乾燥させるスペースがありカビや臭いの発生を防ぎます。床の汚れを他の部屋に持ち込まず清潔を保つことができます。また快適な入浴環境の整備にも役立ちます。
ダイニングキッチン
ダイニングキッチン
駐車場
玄関
大きな玄関収納付きの玄関です 家族皆様の履物をしっかり収納できます
防犯設備
外観