須磨区高倉台1丁目 新築戸建て
価格
3350
万円
間取り
3LDK
面積
95.58㎡
所在階
-
山陽電鉄本線山陽須磨駅周辺への引っ越しをお考えなら「須磨区高倉台1丁目 新築戸建」。神戸市立高倉台小学校が徒歩9分のところにあり、お子様の通学も便利です。戸建て物件をご検討なら、コチラの新築の物件をご覧ください。BSアンテナ設置済みなので、BS放送を楽しめます。神戸市須磨区での住まい探しをサポート致します。ご希望の条件などがお決まりなら、当社スタッフまで是非お伝えください。お問い合わせをお待ちしております。
外観
外観もきれいです
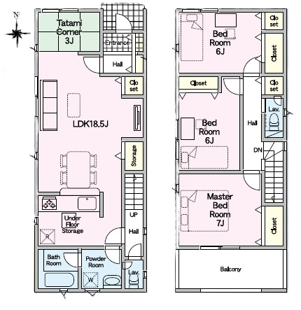
間取り
居間・リビング
おしゃれな居間です
キッチン
キッチンでお料理をお楽しみください
トイレ
コンパクトで使いやすいトイレです
洋室
きれいな洋室です
風呂
落ち着いた空間のお風呂です
玄関
明るい玄関です
お洗濯にも便利なバルコニー付き
トイレ
トイレもきれいです
独立洗面台
朝の支度にも助かる、独立の洗髪洗面化粧台
収納
収納豊富です
展望
居間・リビング
おしゃれな居間です
キッチン
お料理しやすいキッチンです
風呂
きれいなお風呂です
洋室
スタンダードな洋室です
洋室
ゆったりした洋室です
洋室
ゆったりした洋室です
洋室
きれいな洋室です
収納
収納のためのスペースです
洋室
コンパクトで使いやすい洋室です
収納
たっぷりとした収納スペースです
和室
ゆったりとくつろげる和室です
和室
来客時にも便利な和室付き
収納
専用の収納スペースです