南あわじ市 阿那賀 中古
価格
1500
万円
間取り
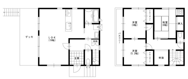
3LDK
面積
96.05㎡
所在階
-
間取り
外観