【限定1区画】宝塚市売布山手町 デザイナーズ新築戸建て
価格
5280
万円
間取り
4LDK
面積
100.84㎡
所在階
-
~ 生活に安心と強さを ~
【日本全国で全壊・半壊「0」の実績】 制震『TRCダンパー』採用!
◆物件のポイント
●北西角地のため、開放感◎
●【日本全国で全壊・半壊「0」の実績】 制震『TRCダンパー』採用!
●リビングに床暖房完備
●駐車2台可能(車種による)
●キッチンには広々パントリー付き
◆立地のポイント
●阪急宝塚線「売布神社」駅まで徒歩約8分(約640m)
●宝塚市立「売布小学校」まで徒歩約7分(約500m)
\本物件はまだ【未完成】ですが、お近くのモデルルーム・ショールーム内覧可能です♪/
\詳細な資料も取り揃えておりますので、是非一度店舗へお越しくださいませ!/
外観
【限定1区画】宝塚市売布山手町 デザイナーズ住宅 北西角地/車2台駐車可能/制震ダンパー採用など魅力がいっぱい! まずはお気軽にお問い合わせください。
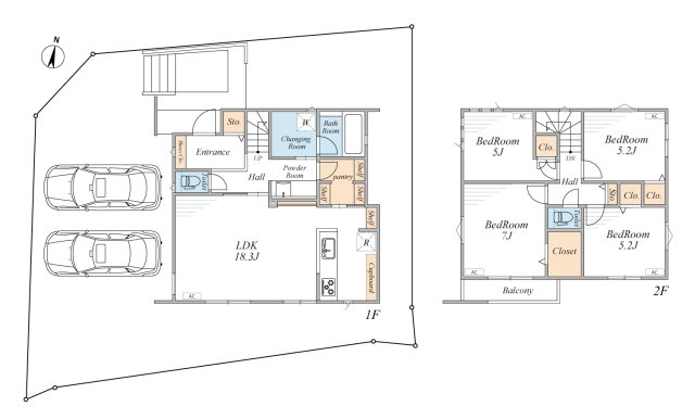
間取り
【限定1区画】価格5,280万円/4LDK+パントリー/土地面積169.10㎡/建物面積100.84㎡
前面道路含む現地写真
現地写真 ※建築工事中(2026年2月23日現在)
前面道路含む現地写真
現地写真 ※建築工事中(2026年2月23日現在)
前面道路含む現地写真
現地写真 ※建築工事中(2026年2月23日現在)
TRCダンパーは特殊粘弾性ゴムの、運動エネルギーを熱エネルギーに変換する性質を利用しています。特殊粘弾性ゴムは瞬時にエネルギー変換するため中小地震から、大地震まで高い性能を発揮します。
一年中快適で健康に暮らせるように、ノン・ホルムアルデヒドの断熱材を使用。高性能グラスウール素材で、より高い断熱性能を実現。
同仕様写真(内観)
【施工例/完成イメージ図】
同仕様写真(内観)
【施工例/完成イメージ図】 ※施工例のご紹介となります。実物とは異なりますので予めご了承下さい。
同仕様写真(内観)
【施工例/完成イメージ図】 ※施工例のご紹介となります。実物とは異なりますので予めご了承下さい。
同仕様写真(内観)
【施工例/完成イメージ図】 ※施工例のご紹介となります。実物とは異なりますので予めご了承下さい。
同仕様写真(内観)
【施工例/完成イメージ図】 ※施工例のご紹介となります。実物とは異なりますので予めご了承下さい。
同仕様写真(内観)
【施工例/完成イメージ図】 ※施工例のご紹介となります。実物とは異なりますので予めご了承下さい。
同仕様写真(内観)
【施工例/完成イメージ図】 ※施工例のご紹介となります。実物とは異なりますので予めご了承下さい。
同仕様写真(内観)
【施工例/完成イメージ図】 ※施工例のご紹介となります。実物とは異なりますので予めご了承下さい。
同仕様写真(内観)
【施工例/完成イメージ図】 ※施工例のご紹介となります。実物とは異なりますので予めご了承下さい。
トイレ
【施工例/完成イメージ図】 従来の陶器ではできなかった頑固な水アカも汚れもどちらも落とせるお掃除ラクラクな衛生陶器アクアセラミックを採用。便器にフチがないのでサッとひと拭きで清潔。
風呂
【施工例/完成イメージ図】 お掃除ラクラクほっカラリ床は床の内側にクッション層を持っています。そのクッション層が畳のようなやわらかさを実現。同時に断熱材の役割も果たし、冬場の一歩目もヒヤっとしません。
キッチン
【施工例/完成イメージ図】 清潔感があり、お手入れが簡単な人造大理石TOPのキッチン。食器洗浄乾燥機、ビルトイン浄水器、シンク下まで無駄なく使える大型キャビネットを採用。
前面道路含む現地写真
現地写真 ※建築中(2025年11月30日現在)
前面道路含む現地写真
現地写真 ※建築中(2025年11月30日現在)
前面道路含む現地写真
現地写真 ※建築中(2025年11月30日現在)
前面道路含む現地写真
現地写真 ※建築中(2025年11月30日現在)
前面道路含む現地写真
現地写真 ※造成工事完了後(2025年11月6日現在)
前面道路含む現地写真
現地写真 ※造成工事完了後(2025年11月6日現在)
前面道路含む現地写真
現地写真 ※造成工事完了後(2025年11月6日現在)
前面道路含む現地写真
現地写真 ※造成工事完了後(2025年11月6日現在)
前面道路含む現地写真
現地写真 ※造成工事完了後(2025年11月6日現在)
前面道路含む現地写真
現地写真 ※造成工事完了後(2025年11月6日現在)