プリオーレ東灘
価格
2198
万円
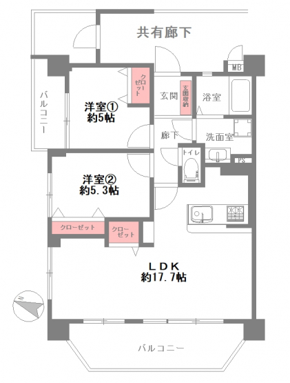
間取り
2LDK
面積
61.56㎡
所在階
5階
こだわりポイント満載のプリオーレ東灘。便利で快適な生活ができる中古マンションです。モニターから顔が見えるTVインターホン付きです。駅の近くに立地する、徒歩5分圏内の物件です。阪神本線深江周辺にある不動産の購入をご検討してはいかがでしょうか。交通の利便性が高いため、快適な暮らしができます。ぜひお気軽にご連絡下さい。
間取り
外観
居間・リビング
キッチン
風呂
独立洗面台
トイレ
居間・リビング
居間・リビング
居間・リビング
居間・リビング
居間・リビング
洋室
洋室
洋室
寝室
玄関
玄関
外観