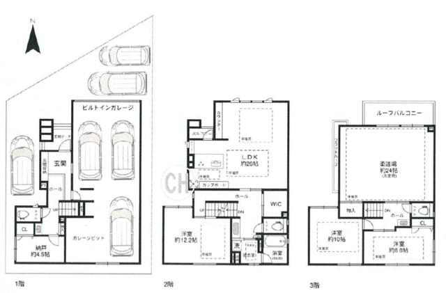
西宮市広田町 戸建
価格
12950
万円
間取り
4SLDK
面積
266.2㎡
所在階
-