ベルヴェデールイトーピア武庫川
価格
2780
万円
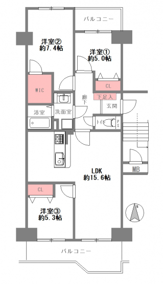
間取り
3LDK
面積
73.01㎡
所在階
11階
西宮市立小松小学校が通学範囲内、学校まで徒歩9分。玄関にシューズボックスがあり、整頓も快適に行えます。幅広い方にお勧めしたい高ニーズな3LDKの物件です。駅から徒歩7分圏内に立地しています。当社はお客様の住まい探しをお手伝いします。こだわりやご要望などがあれば、メール又はお電話にてご連絡ください。また、ご質問やご不明な点などもお受けいたします。
間取り
外観
外観
居間・リビング
キッチン
風呂
独立洗面台
トイレ
居間・リビング
居間・リビング
居間・リビング
居間・リビング
居間・リビング
キッチン
洋室
洋室
洋室
洋室
洋室
洋室
収納
玄関
玄関
玄関
展望