ランデージ水道筋
価格
2500
万円
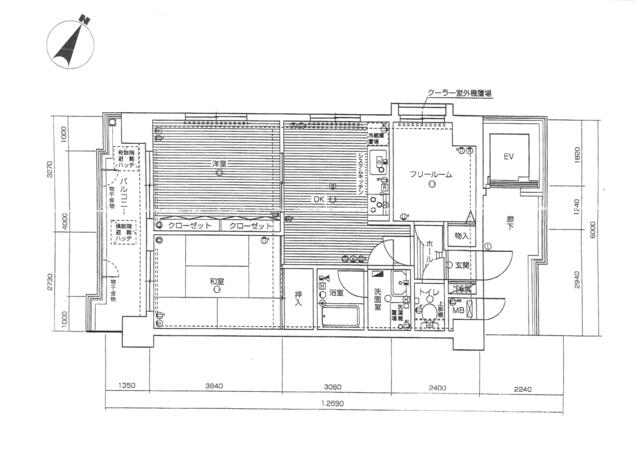
間取り
2SDK
面積
54.6㎡
所在階
7階
間取り