CASADIA南塚口
価格
6.7
万円
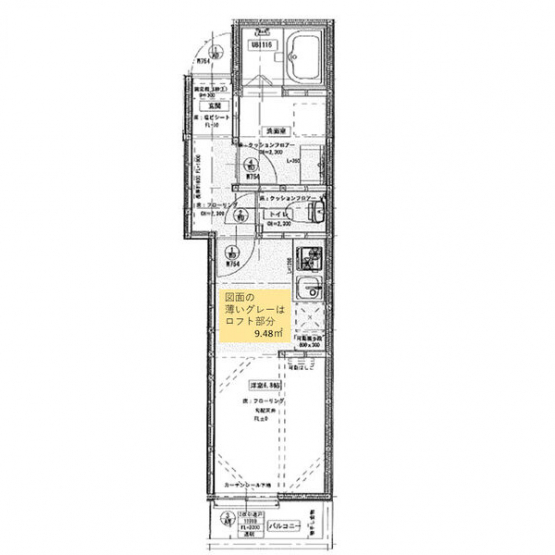
間取り
1R
面積
21.56㎡
所在階
2階
共用部には宅配ボックスを設置しているため、外出が多い方でも荷物を受け取ることができます。玄関先まで覗き穴を覗きに行かなくてもインターホン越しに誰が来たのかを確認できるので防犯対策につながります。室内設備は浴室乾燥機・洗面所独立などが揃っており、とても充実しています。駐車場が空いているので、車をお持ちの方も安心です。良好な陽当りが好評の、魅力溢れる一押しの物件となっています。機能的なシステムキッチン付きの物件です。交通アクセスの充実した住まいをお求めなら、阪急神戸本線塚口周辺でお部屋探しをしてはいかがでしょう。きっとお客様のライフスタイルに合った暮らしが可能です。
外観
間取り
その他
その他
その他
その他