CASADIA南塚口
価格
6.6
万円
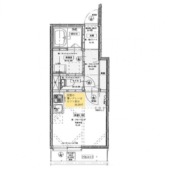
間取り
1R
面積
21.24㎡
所在階
2階
TVインターホンで来客時に顔が見えます。宅配ボックスがあれば直接荷物を受け取る必要がないので、宅配業者を装う人に対する防犯対策にもなり安心できます。室内設備は洗面所独立・浴室乾燥機など豊富に揃っており、過ごしやすいお部屋になっております。忙しいあなたの味方の、敷地内ごみ置き場つきの物件です。徒歩4分で駅にアクセス可能な、魅力的な駅近物件です。暑い夏、寒い冬には必須のエアコンが付いています。尼崎市エリアで新たな生活を始めたいとお考えの方。賃貸情報のことなら当社にお任せ下さい。地域に密着しておりますので、確かな地域情報と賃貸情報をご紹介いたします。お気軽にお問い合わせ下さい。
外観
間取り
その他
その他
その他
その他