明石市二見町西二見戸建
価格
4280
万円
間取り
4LDK
面積
103.77㎡
所在階
-
こちらの物件の内覧をご希望の方は0120930667 担当 高見 までお問合せください。
住宅ローンや物件に関する相談、質問等いつでもお待ちしております。
外観
しっかりとした造りの外観は、安心感を与える堅牢なデザインです。長く住み続けられる住まいです。
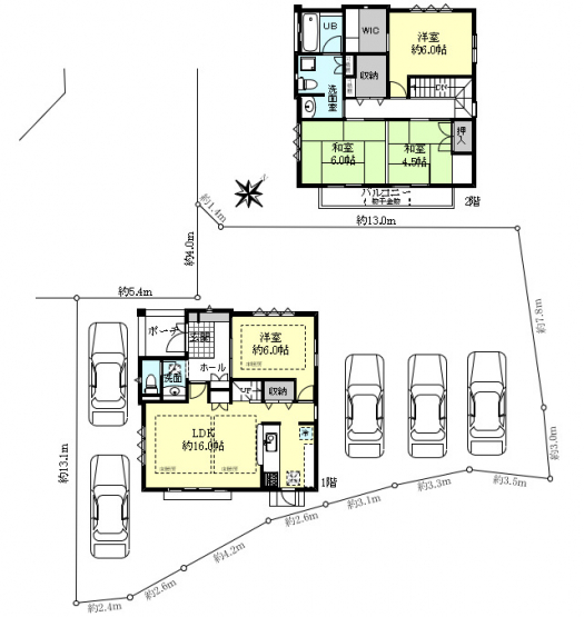
間取り
4280万円、4LDK、土地面積241.07m2、建物面積103.77m2
キッチン
裏庭に通じる勝手口付きで換気ができます。キッチンで出た生ゴミや資源ゴミを裏庭へ仮置きも可能です。
居間・リビング
約16帖のリビングダイニング。ソファ、ダイニングテーブルを置いても十分な広さがあります。南東側に大きな窓がありリビング全体が明るく過ごしやすいです。2面床暖房有
玄関
玄関のシューズボックスは整理整頓に役立ち、玄関をすっきりとさせる事ができます。
風呂
快適な使い心地とゆとりある空間が1日の疲れを解きほぐすバスルーム。空間も浴槽もゆったりのびのび使えるゆとり設計。
和室
柔らかい畳は転んでも安心で、冬はこたつを置いて家族団欒の場としても活躍します。
トイレ
落ち着いた雰囲気のトイレ空間。温水洗浄便座付きのため、年中快適に・衛生的にお使いいただけます。
和室
イグサの香りに癒される落ち着いた和室。客間としてはもちろん、小さなお子様の遊び場や、家事の合間の休憩スペースとしても重宝します。
前面道路含む現地写真
多様化する住まいのお悩みを当社へお気軽にご相談下さい。
洋室
2F洋室はプライベートルームはゆったりと快適にお過ごしすることができます。