有野台6丁目マリンホーム施工新築一戸建2号地
価格
3380
万円
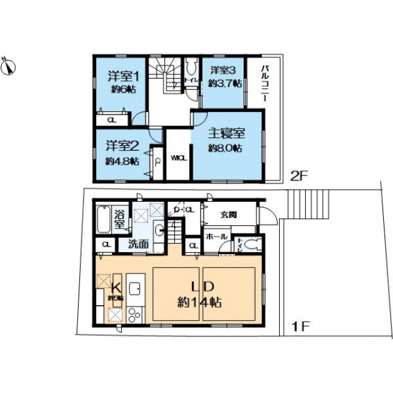
間取り
4LDK
面積
107.13㎡
所在階
-
外観
間取り
外観
外観
外観
前面道路含む現地写真
前面道路含む現地写真