アンビエント西宮仁川アールブリーズ
価格
4980
万円
間取り
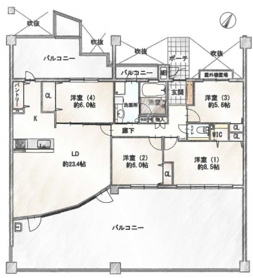
4LDK
面積
106.27㎡
所在階
5階
83.49平米の広さのバルコニー面積です☆物件の購入をご予定なら、4,980万円のこちらの物件☆日常生活で利用頻度の高い水回りだからこそ、使い勝手のいいシステムキッチンを選んでみませんか☆20帖以上もあるリビングで快適な時間を過ごしてみませんか☆当社は経験豊富なプロのスタッフが在籍しているので、安心して住まい探しをお任せください☆失敗したくない不動産購入だからこそ、プロに任せてはいかがでしょうか(*´ω`*)
※西宮市の不動産売却なら株式会社FineBlue
居間・リビング
間取り
外観
居間・リビング
風呂
キッチン
その他
玄関
独立洗面台
その他
トイレ
その他
その他
その他
その他
その他
展望
その他