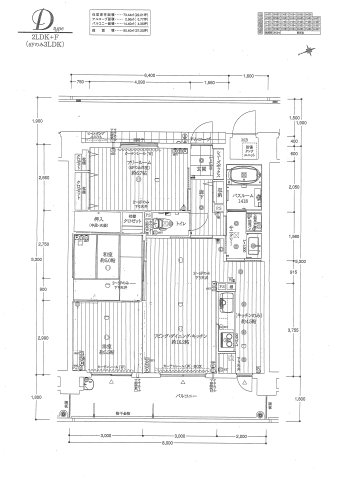
アルファステイツ城西嵐山
価格
2200
万円
間取り
2LDK
面積
73.44㎡
所在階
3階