ユーミーハイツ
価格
5.7
万円
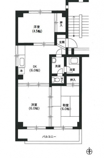
間取り
3DK
面積
50.06㎡
所在階
1階
外観
間取り
玄関
玄関
キッチン
風呂
洗面所
トイレ
居間・リビング
和室
洋室
洋室
収納
収納
バルコニー
駐車場
その他共有部分
その他共有部分