北名次町高性能住宅
価格
13800
万円
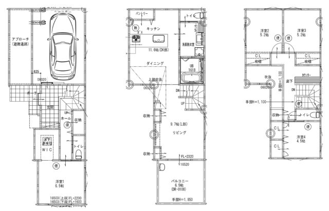
間取り
4LDK
面積
153.01㎡
所在階
-
シャッター付ガレージにハニカムライトを採用。愛車を美しく照らし出す上質な空間設計。防犯性とデザイン性を兼ね備えた、こだわりのガレージ空間です。
間取り
ゆとりある4LDKに、高気密・高断熱の高性能住宅を融合。家族それぞれの時間を大切にしながら、家中どこでも快適に過ごせる、質の高い暮らしを叶える一邸です。
洋室
吹抜けのある開放的なLDKには、窓からやわらかな光が差し込み、心地よい空間を演出。高性能住宅ならではの快適な室内環境で、家族が自然に集まる明るいリビングを実現しています。
洋室
光あふれる大きな窓が特徴のリビング。高気密・高断熱仕様の高性能住宅で、年間を通して快適に過ごせます。開放感と心地よさを両立させた、上質な住空間です。
TOTOの最上級キッチン「ザ・クラッソ」を採用し、美しさと機能性を両立。上質なデザインと使いやすさで、毎日の料理時間をより快適で心地よいひとときにしてくれます。
キッチン
洗練されたデザインと優れた機能性が融合し、使うたびに心地よさを実感できる、上質なキッチン空間を実現します。
居間・リビング
テレビ背面にはエコカラットを採用し、おしゃれなリビングを演出。上質な質感が空間のアクセントとなり、調湿・脱臭効果も備えた、デザイン性と機能性を兼ね備えた快適な住まいです。
洋室
確かな構造性能を追求した、SW工法×自社施工の住まい。 目に見えない部分にまでこだわり、高気密・高断熱性能により一年を通して快適な室内環境を実現します。 完成が待ち遠しい、性能と美しさを兼ね備えた注目
トイレ
スタイリッシュなタンクレストイレを採用し、空間をすっきりとした印象に。デザイン性と使いやすさを両立した快適なトイレ空間です。
風呂
TOTOのシンラHLシリーズを採用した浴室。肩楽湯・腰楽湯が心地よく全身を包み込み、上質なリラックスタイムを演出します。保温性も高く、毎日の疲れをしっかり癒せるワンランク上のバス空間です。
洋室
落ち着いたグリーンのアクセントクロスが、安らぎと心地よさを演出する空間。自然を感じるやさしい色合いが、リラックスできる上質な居室をつくり出します。
洋室
温もりのあるブラウンのアクセントクロスが、落ち着きと重厚感を感じさせる空間。シックで上品な雰囲気が、くつろぎの時間をより豊かに彩ります。
玄関
ポーチにはレッドシダーを採用し、温もりある質感が外観を美しく演出。ライトの柔らかな光が映え、帰宅時も心地よく迎えてくれるおしゃれな空間に仕上げました。
その他
視線を抜く鉄骨階段が、空間に軽やかな抜け感と洗練された印象を演出。高気密・高断熱の高性能住宅だからこそ、開放的な設計でも一年中快適な温度環境と心地よい暮らしを実現します。
その他
吹抜に面した廊下が、上下階をゆるやかにつなぎ、開放感と一体感のある空間を演出。光と視線が抜けることで、家全体に広がりと心地よさをもたらします。
玄関
ホワイトタイルとエコカラットを採用した玄関は、明るく清潔感あふれる上質空間。調湿・消臭機能により、いつでも快適で心地よい空気環境を保ちます。