ミモアート
価格
9.2万円
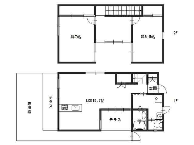
間取り
LDK
面積
78.2㎡
階数
2階建